開飯川食堂裝修工程
| 項目名稱 | 開飯川食堂裝修工程 | 行業屬性 | 酒店/餐飲/會所 |
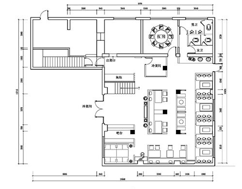
| 項目地址 | 南京禮節路與勝利步行街交叉口 | 項目造價 | 35.5萬 |
| 主關鍵詞 |
▄原建筑結構分析: 頂面和地面都非常簡單整體,亮點在于墻面的裝飾以及軟配的運用,小小的復古感,不只是普通的用餐,更是享受一種用餐的情調!
▄設計需求: 整個空間意式田園風格氛圍很濃,幽暗的燈光,使顧客在用餐時能感受到濃濃的浪漫氣息,同時也能很好的品味異國風情。
▄設計風格定位: 濃郁的意大利風情,色調采用大膽的橄欖綠和仿古文化磚飾面,整個空間意式田園風格氛圍很濃,幽暗的燈光,使顧客在用餐時能感受到濃濃的浪漫氣息,同時也能很好的品味異國風情。


北京鑄誠大廈辦公裝修工程
北京銀河SOHO辦公裝修工程
301醫院裝修工程
